○くまの・こども夢プラザ管理運営要綱
平成31年2月7日
告示第9号
(趣旨)
第1条 この要綱は、くまの・こども夢プラザの設置及び管理等に関する条例(平成30年熊野町条例第1号。以下「条例」という。)及びくまの・こども夢プラザ管理運営規則(平成30年熊野町規則第16号。以下「規則」という。)の施行に関し必要な事項を定めるものとする。
(宿泊室を使用する事業等)
第2条 規則第7条第1項第1号に規定する町長が指定する事業は、次のとおりとする。
(1) 定住人口拡大のために町が実施する熊野町体験訪問事業
(2) 筆産業の振興等のために町が実施する研修等事業
(3) その他条例第3条各号に定める事業を実施するために町長が特に認める事業
(宿泊利用規約等)
第3条 くまの・こども夢プラザの館長は、使用者(規則第5条第3項に規定するものをいう。以下同じ。)に対して、次に定める事項を提示し、必要に応じて口頭により説明し、使用者がこれを遵守するよう努めなければならない。
(1) ご利用案内(別紙1)
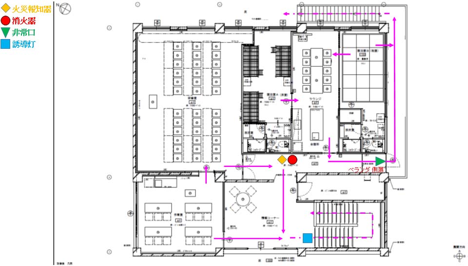
(2) 緊急避難経路図及び消火器配置図(別紙2)
(3) 緊急連絡網及び連絡先一覧(別紙3)
(4) 町長が必要と認めるもの
附則
この要綱は、公布の日から施行する。
附則(令和2年3月27日告示第40号)
この要綱は、令和2年4月1日から施行する。
[別紙1]
ご利用案内
くまの・こども夢プラザ(以下「プラザ」という。)では、お客様に安全かつ快適にご滞在していただくため、くまの・こども夢プラザの設置及び管理等に関する条例(平成30年熊野町条例第1号)、くまの・こども夢プラザ管理運営規則(平成30年熊野町規則第16号)に規定するもののほか、くまの・こども夢プラザ管理運営要綱(平成31年熊野町告示第9号)において次のとおり「ご利用案内」等を定めておりますので、これらに従ってご利用ください。遵守していただけない場合はやむを得ず、ご宿泊又はプラザ内の諸施設のご利用をお断りし、損害等が生じた場合においては、賠償責任を負っていただくこともございますので、特にご留意くださいますようお願いします。
なお、午後5時15分から翌朝午前8時30分の間又は休日(土曜日、日曜日、祝日及び12月29日から翌年の1月3日までの日。以下「夜間・休日等」という。)については、基本的にプラザ内に職員を配置しておりませんので、「2 夜間・休日等の利用について」に留意してご利用ください。
1 チェックイン・チェックアウト
(1) チェックイン
① チェックインは、午後3時からです。受付は、プラザ事務所でお願いします。
② チェックイン時(利用開始前)に、規則第4条第2項に規定する宿泊申請書及び宿泊者名簿を提出し、使用料を全額お支払いください。お支払なき場合はご宿泊をお断りいたします。また、使用料支払後に、宿泊室、ラウンジ及びロッカーの鍵並びに宿泊室使用許可証の交付を受けてください。
③ チェックイン後は、速やかに避難路及び避難器具等の確認をしてください。
(2) チェックアウト
① チェックアウトは、午前10時までです。規則第10条に規定する点検を必ず受けた後に、すべての鍵を返却してください。
② 夜間・休日等において予定の変更等により急遽チェックアウトする必要が生じた場合においては、熊野町役場宿直(082―820―5600)に連絡し指示を受けてください。
2 夜間・休日等の利用について
(1) 夜間・休日等にプラザを利用する場合は、プラザ内は宿泊者のみとなりますので、次の点にご留意ください。
① 非常時(火災、地震等)を除き、出入口は2階のみとなります。
② ラウンジ及び宿泊室以外は、施錠の上、機械による警備(以下「機械警備」という。)を行います。
③ 夜間・休日等においては、2階出入口は、宿泊者による管理となります。
(2) 夜間・休日等における宿泊上のトラブル等については、ラウンジに設置の連絡用電話機等をご利用ください。
① 宿泊等に関することは、熊野町役場宿直(082―820―5600)へご連絡ください。宿直による回答若しくはプラザ担当者から、折返し連絡等をします。
② 非常時においては、宿泊者の安全確保の上、消防・救急(119)又は警察(110)等へ連絡の上、熊野町役場宿直(082―820―5600)にもご連絡ください。
(3) 非常時における避難路
非常時における避難は、安全を確保の上、プラザ内の次のいずれかの場所から避難してください。機械警備実施中であっても、開錠し避難してください。なお、1階トイレ側出入口は、常時、防犯上施錠しておりますので避難できません。
① 1階正面玄関
② 1階裏側扉
③ 2階ベランダ側扉
④ その他、窓など安全に避難できる箇所
3 飲食等について
(1) 飲食可能域
子育て支援課長が、特段の理由があると認める場合を除き、飲食はラウンジのみとします。
(2) 食事の提供等
① プラザにおいて、食事の提供は行いません。
② ラウンジにおいて、自炊することは可能です。衛生的にご利用ください。なお、調理器具などの貸し出しは可能ですので、ご相談ください。
(3) 冷蔵庫の利用
衛生的にご自由にお使いください。
(4) 飲酒
飲酒は、禁止とします。
4 トイレ、洗面、シャワー等について
(1) トイレ
プラザ内の次の全てのトイレの使用をすることができます。
① 宿泊室内トイレ(男女共用)
② 1階トイレ(男女こども別)
③ 屋外トイレ(男女共用)
(2) 洗面
洗面は、次の箇所でお願いします。なお、洗面用具は各自ご用意ください。
① 宿泊室内洗面台
② ラウンジシンク
③ 1階トイレ内洗面台
(3) シャワー
① シャワーについては、原則、宿泊室ごとにご使用ください。
② ボディーソープ、リンスインシャンプー、足ふきマットは、必要であればプラザで準備したものをご利用ください。
③ 洗面用タオル、バスタオルは各自ご用意ください。
(4) 洗濯
プラザ内では洗濯はできません。有料のコインランドリー等をご利用ください。
5 寝具等
(1) 洋室
宿泊室Aの寝具はご自由にご利用ください。
(2) 和室
宿泊室Bの押入にある寝具はご自由にご利用ください。なお、寝具の上げ下ろしは、宿泊者でお願いします。
(3) 寝間着
各自ご用意ください。
6 ロッカー
ロッカーの管理は、各自でお願いします。
7 貴重品について
クロークや室内金庫は、ご用意しておりませんので、貴重品は各自管理してください。紛失等の場合において、町は責任を負いかねます。なお、ロッカーを活用していただくことは可能です。
8 お忘れ物等のお取扱いについて
(1) お忘れ物、遺失物の処理は、法令に基づいてお取り扱いいたします。
(2) お忘れ物、遺失物の保管期間は、原則1ヶ月といたします。
9 禁止行為
(1) プラザ内で許可なく寄付の募集、行商、宣伝、広告物の掲示・配布、看板、立札類の設置、危険物の持ち込みをしないでください。
(2) プラザ建物内及び敷地内は禁煙です。
(3) プラザ内に次に掲げるものの他、他のお客様の迷惑になるものの持ち込みをしないでください。
① 犬、猫、小鳥、その他の動物
② 発火又は引火性のもの
③ 悪臭を発するもの
④ 法令で所持を禁じられているもの
⑤ その他子育て支援課長が持込みを不適切と判断するもの
(4) プラザ内で、賭博や風紀、治安を乱すような行為、他のお客様の迷惑になるような行為をしないでください。
(5) プラザ内の各部屋、備品等を、その用途以外に使用しないでください。また、各部屋、備品等の現状を変更して使用しないでください。
(6) プラザ内の外観を損なうものを窓側などに陳列等しないでください。
(7) ロビーなどに所持品を放置しないでください。
(8) 未成年者のご宿泊には、監護者の同伴が必要となりますので、未成年者のみの宿泊はできません。
10 火災予防について
(1) プラザ内での火気の使用はラウンジのみ可能となります。暖房用、炊事用などの火器等を持ち込んでの使用はしないでください。
(2) その他火災の原因になる行為をしないでください。
11 プラザ内で火災が発生・発見した場合
(1) 平日
職員の指示に従い、落ち着いて避難してください。
(2) 夜間・休日等
非常口より落ち着いて避難してください。また、消防・救急(119)又は警察(110)等へ連絡の上、熊野町役場宿直(082―820―5600)へ連絡してください。
12 避難される場合
(1) 延焼防止と煙の拡散防止のため、必ずドアを閉めてください。
(2) タオルを水にひたし、鼻と口を覆ってください。
(3) 壁に沿って姿勢を低くし、煙と反対方向の非常口から避難してください。
(4) 避難した後、貴重品などを取りに部屋に戻ることは、危険ですから絶対におやめください。
13 地震が発生したら
(1) 自分の身の安全を守ってください。
① 窓ガラスなどから離れ、テーブルの下などにもぐり、その脚をしっかり握って倒れないようにしてください。
② クッションなどで頭を保護してください。
(2) 出入口を確保してください。
(3) 慌てて戸外に飛び出さず、揺れが収まるのを待ってください。
(4) 火気使用中の場合は、揺れが収まって火を止めてください。
[別紙2]
緊急避難経路図及び消火器配置図(1階)

緊急避難経路図及び消火器配置図(2階)

[別紙3]
緊急連絡網及び連絡先一覧
〈緊急連絡網〉

〈連絡先一覧〉
機関名 | 電話番号 | 備考 |
海田警察署 | 082―820―0110 | |
海田警察署 熊野交番 | 082―854―0102 | |
広島市消防局 安芸消防署 | 082―822―4349 | |
広島市消防局 安芸消防署 熊野出張所 | 082―854―1103 | |
熊野町役場 子育て支援課 | 082―820―5623 | |
熊野町役場 宿直 | 082―820―5600 | 夜間・休日等対応時 |
緊急連絡網及び連絡先一覧(職員用)
〈緊急連絡網〉

〈連絡先一覧〉
機関名 | 電話番号 | 備考 |
海田警察署 | 082―820―0110 | |
海田警察署 熊野交番 | 082―854―0102 | |
広島市消防局 安芸消防署 | 082―822―4349 | |
広島市消防局 安芸消防署 熊野出張所 | 082―854―1103 | |
広島県西部保健所 広島支所 | 082―513―5526 | |
熊野町役場 子育て支援課 | 082―820―5623 | |
熊野町役場 上下水道課 | 082―820―5610 | |
熊野町役場 宿直 | 082―820―5600 | 総務課 |
中国電力(株)矢野営業所 | 0120―525―089 | |
一般財団法人 中国電気保安協会 矢野営業所 | 082―889―0262 | |
(プロパンガス単価契約業者) |